Concentricity alignment tool (ERAG system) measuring turbine diaphragm alignment with rotor in place for precise internal alignment

Turbine alignment has traditionally relied on complex setups, tight wire systems, or laser alignment tools that require time, skill, and ideal conditions. But when outages are tight and precision is non-negotiable, these methods can slow teams down.

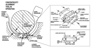
That’s where the Concentricity Alignment Tool (CAT), also known as the ERAG system (Electronic Radial Alignment Gauge), changes the game.

This guide breaks down how the CAT tool simplifies turbine alignment, how it compares to traditional laser alignment tools, and why more field teams are shifting toward direct measurement methods.

What Is a Concentricity Alignment Tool (CAT)?

Understanding the CAT / ERAG System

A concentricity alignment tool is designed to measure the relative position between turbine components, specifically diaphragm or casing alignment (without relying on indirect calculations).

The ERAG system provides:

  • Direct radial measurement
  • High-resolution readings (up to 0.0001”)
  • Rotor-in-place capability
  • Immediate, easy-to-interpret results

Unlike traditional methods, the CAT tool eliminates guesswork by capturing actual misalignment values instead of inferred data.

Why Traditional Alignment Methods Fall Short

Limitations of Laser Alignment Tools

While a laser alignment tool is effective for shaft alignment, it has limitations when applied to turbine internal alignment:

  • Requires line-of-sight
  • Sensitive to environmental conditions
  • Often indirect for diaphragm alignment
  • Setup complexity increases downtime

 

Challenges with Tight Wire Systems

  • Time-consuming setup
  • Susceptible to sag and human error
  • Requires high skill level
  • Difficult to maintain consistency

How the ERAG/CAT Tool Simplifies Turbine Alignment

Rotor-in-Place Measurement

One of the biggest advantages of the concentricity alignment tool is the ability to measure with the rotor still installed.

Why it matters:

  • Eliminates disassembly time
  • Reduces outage duration
  • Maintains real-world alignment conditions

Direct Measurement vs. Calculated Alignment

Instead of relying on offsets and calculations like many laser alignment tools, the ERAG system provides:

  • Direct diaphragm misalignment readings
  • Immediate actionable data
  • Reduced risk of interpretation errors

Faster Setup, Faster Results

With fewer components and simpler setup:

  • Technicians can deploy quickly
  • Measurements are captured faster
  • Alignment decisions happen in real time

CAT vs. Traditional Alignment Tools: Which One Should You Use?

When to Use a Laser Alignment Tool

A laser alignment tool is the go-to solution for external alignment tasks where angularity and offset need to be corrected.

Best used for:

  • Shaft-to-shaft alignment
  • Rotating equipment like pumps, motors, and gearboxes
  • Applications requiring angular and offset correction

When to Use a Concentricity Alignment Tool (CAT / ERAG System)

A concentricity alignment tool like the ERAG system is designed for internal turbine alignment, providing direct measurement of component position.

Best used for:

  • Turbine diaphragm alignment
  • Casing and bore alignment
  • Situations where rotor removal is impractical or time-prohibitive

Unlike laser systems, the CAT tool measures misalignment directly at the source, simplifying the alignment process.

 

The Reality: It’s Not Either/Or

In the field, this isn’t a competition, it’s a combination.

High-performing teams rely on both technologies:

  • Laser alignment tools for shaft alignment and external components
  • ERAG/CAT systems for internal turbine alignment and concentricity measurement

 ➡  The result: faster outages, higher accuracy, and a more complete alignment strategy.

Choosing the Right Alignment Approach for Your Project

The choice between a laser alignment tool and a concentricity alignment tool depends on your application, not preference.

If your goal is:

  • Internal turbine alignment (bores, diaphragms, casing halves, centerlines)
    → Use internal geometric alignment systems (non-rotating references)
    • ERAG system → Best for bore alignment and concentricity checks in turbines where high-precision internal referencing is required
    • Laser trackers / optical systems → Used for large-scale geometry, centerline establishment, and multi-point measurements
  • Shaft alignment (rotating equipment: motor–pump, turbine–generator, gearboxes)
    → Use laser shaft alignment systems, which measure and correct rotational centerlines under operating conditions
  • Full outage / turbine-generator alignment strategy
    → Combine both:
    • Internal alignment to establish true geometry
    • Shaft alignment to ensure proper machine-to-machine positioning

Understanding this distinction is what separates efficient outages from costly delays.

Key Takeaway: Simplifying Turbine Alignment Starts with the Right Approach

Turbine alignment doesn’t have to be slow, complex, or dependent on indirect methods.

The reality is simple: laser alignment tools and the ERAG/CAT system serve different purposes, and the most efficient teams know when to use each. While laser systems handle shaft alignment, a concentricity alignment tool like the ERAG brings clarity to what’s happening inside the turbine (where precision matters most).

By using a direct measurement approach, you reduce guesswork, speed up decision-making, and ultimately shorten outage time without compromising accuracy.

 🔗 Explore our ERAG CAT tool rental and see how you can bring faster, more accurate turbine alignment to your next project:

Follow us on LinkedIn 💡

Explore our ERAG CAT Preowned Equipment

Includes ERAG Concentricity Alignment Tool – LCAT SCAT Micro CAT

Privacy Preferences
When you visit our website, it may store information through your browser from specific services, usually in form of cookies. Here you can change your privacy preferences. Please note that blocking some types of cookies may impact your experience on our website and the services we offer.